Paloilmoitinjärjestelmä on kiinteistön tärkein yksittäinen turvajärjestelmä. Oikein suunniteltu järjestelmä havaitsee tulipalon mahdollisimman varhaisessa vaiheessa, varoittaa rakennuksessa olevia ihmisiä ja välittää tiedon automaattisesti pelastuslaitokselle – säästäen henkiä ja omaisuutta.
Sähkösuunnittelu Center Oy tarjoaa kokonaisvaltaista paloilmoitinjärjestelmien suunnittelua kaikenkokoisiin ja -tyyppisiin kohteisiin koko Suomessa.
Määrittelemme järjestelmän laajuuden ja toiminnallisuuden rakennuksen käyttötarkoituksen, palokuorman ja viranomaismääräysten mukaan. Jokainen kohde on erilainen – tarvekartoitus varmistaa, että suunniteltu järjestelmä vastaa juuri kyseisen kohteen vaatimuksia.
Valitsemme kuhunkin tilaan parhaiten soveltuvat ilmaisimet – savuilmaisimet, lämpöilmaisimet tai näytteenottoilmaisimet – tilojen olosuhteiden ja käyttötarkoituksen mukaan. Huolellinen ilmaisinvalinta minimoi erheelliset hälytykset ja varmistaa luotettavan toiminnan.
Suunnittelemme keskusten ja käyttölaitteiden optimaalisen sijoittelun käytettävyys ja huollettavuus huomioiden. Oikea sijoittelu on ratkaisevaa sekä hätätilanteiden hallinnan että päivittäisen käytön kannalta.
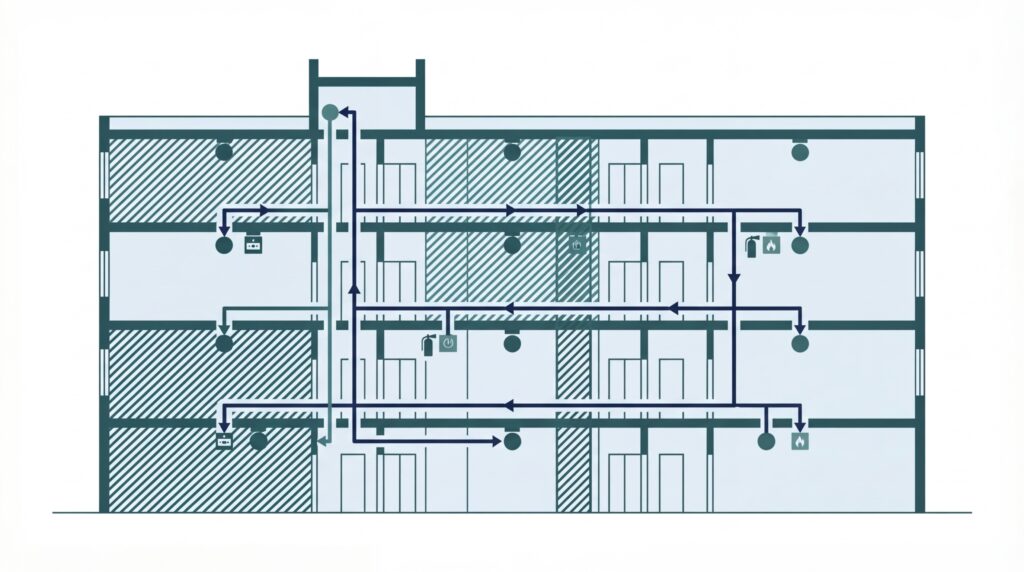
Suunnittelemme palonkestävät kaapelireitit ja määrittelemme oikeat kaapelityypit kuhunkin käyttötarkoitukseen. Palonkestävä kaapelointi varmistaa järjestelmän toiminnan myös tulipalon aikana.
Laadimme selkeät paikantamiskaaviot pelastuslaitoksen käyttöön. Hyvin laadittu paikantamiskaavio nopeuttaa merkittävästi palokohteiden paikantamista hätätilanteissa ja on lakisääteinen vaatimus useissa kohteissa.
Suunnittelemme järjestelmän varavoima- ja UPS-ratkaisut, jotta paloilmoitin toimii luotettavasti myös sähkökatkosten aikana. Järjestelmän toimintavarmuutta ei voi jättää sähkönsyötön varaan.
Paloilmoitinjärjestelmä ei toimi yksin – se on kiinteässä yhteydessä rakennuksen muihin teknisiin järjestelmiin. Suunnittelussa huomioimme vaikutukset ilmanvaihtoon, savunpoistoon, kulunvalvontaan ja muihin turvajärjestelmiin. Kokonaisvaltainen suunnittelu varmistaa, että kaikki järjestelmät toimivat yhteen saumattomasti hätätilanteessa.
Paloilmoitinjärjestelmien suunnittelu perustuu aina uusimpiin määräyksiin ja standardeihin, erityisesti ST-ohjeisto 1:een ja SFS-EN 54 -standardisarjaan. Asiantuntijamme seuraavat aktiivisesti määräysten kehitystä ja varmistavat, että suunnitelmat täyttävät viranomaisvaatimukset kaikissa tilanteissa.
Laajennus ja peruskorjaus, sähkösuunnittelu
Suunnittelun vaativuus vaativa
Kohteen laajuus: 3261 m²
Sähkösuunnittelu, entisöinti ja peruskorjaus
Suunnittelun luokitus poikkeuksellisen vaativa
Toteutus rakennuksen vaatimat määräykset huomioon ottaen.Kaupunkikuvallisesti arvokas historiallinen kivirakennus.
Sähkösuunnittelu, peruskorjaus
Suunnittelun luokitus poikkeuksellisen vaativa
Toteutus rakennuksen vaatimat määräykset huomioon ottaen, mm. rakennuksessa tehtävissä korjauksissa ja muutostöissä konsultoitava museoviranomaista.
Suunnittelun luokitus vaativa.
Tehtävän kuvaus: Uudisrakennus, sähkösuunnittelu
Kohteen laajuus: 2069,5 m²
Uudisrakennus, sähkösuunnittelu
Suunnittelun vaativuus vaativa
Kohteen laajuus: 8298 m²
Olemme suunnitelleet paloilmoitinjärjestelmiä lukuisiin vaativiin kohteisiin sairaaloista teollisuuslaitoksiin. Tunnemme eri toimialojen erityisvaatimukset ja osaamme huomioida suunnittelussa sekä nykyiset että tulevaisuuden tarpeet.
Käytämme suunnittelussa tehokasta Cadmatic-ohjelmistoa sekä tietomallinnusta, jotka varmistavat suunnitelmien tarkkuuden ja laadun. Otamme vastuun tekemisistämme ja perustelemme valitut ratkaisut asiakkaalle aina suunnitteluvaiheessa.
Tarvitsetko paloilmoitinjärjestelmän suunnittelua uudis- tai saneerauskohteeseen? Ota yhteyttä – kartoitetaan yhdessä kohteesi vaatimukset ja laaditaan turvallinen ja määräystenmukainen suunnitelma.

Sähkösuunnittelu Center Oy on Neuvottelevat SähköSuunnittelijat NSS ry:n jäsen. Sähkösuunnittelijat NSS ry on Suomen sähköalan suunnittelijoiden ja suunnittelutoimistojen yhdistys, jonka toiminta-ajatuksena on kehittää hyvää sähkösuunnittelutapaa ja toimia jäsentensä ammatillisena yhdyssiteenä. Suunnittelutoimistollamme on poikkeuksellisen vaativa rakennussähkösuunnittelijan pätevyys.

Noudatamme toiminnassamme SKOL RY:n eettisiä sääntöjä.

Noudatamme toiminnassamme kansainvälisen konsulttijärjestön FIDICin eettisiä sääntöjä.

Noudatamme kaikessa toiminnassamme standardin mukaista ISO 9001 -laatujärjestelmää.

Noudatamme kaikessa toiminnassamme standardin mukaista ISO 14001 -ympäristöjärjestelmää.

Luotettava Kumppani -merkki osoittaa yrityksemme huolehtivan lakisääteisistä velvoitteistaan ja vastuullisuudestaan. Tämä takaa asiakkaillemme turvallisen yhteistyökumppanin.

Sähkö- ja teleurakoitsijaliitto STUL ry jäsenyys osoittaa sitoutumistamme alan yhteisiin laatukriteereihin, tekniseen kehitykseen ja eettisiin toimintatapoihin. STUL jäsenenä pidämme yllä henkilöstömme ammattitaitoa ja noudatamme alan parhaita käytäntöjä kaikissa sähköurakointitöissämme.
Sähkösuunnittelu Center Oy on insinööritoimisto, joka tarjoaa kattavat sähkösuunnittelupalvelut julkishallinnolle, yrityksille ja yksityisasiakkaille. Laadukasta suunnittelua yli 30 vuoden kokemuksella – tutustu ja ota yhteyttä!
Sähkösuunnittelu Center Oy on insinööritoimisto, jonka toimialue on koko Suomi. Toimipisteet sijaitsevat Joensuussa, Turussa ja Forssassa.
Y-TUNNUS 3391850-4
Copyright © Sähkösuunnittelu Center Oy 2025. Kaikki oikeudet pidätetään.